Kontaktformular

REIMANN IMMOBILIEN
Aachener Str. 1158a
50858 Köln

Tel: 02234-933 5555
Fax: 02234-933 5550
Email: info@reimann-immobilien.de


Route planen

Reimann Immobilien

Ihr Makler im Kölner Westen.
Kompetent. Zuverlässig. Fair.
Mitglied der Kölner Immoblienbörse.
Die Vereinigung langjährig erfahrener
Immobilienmakler in Köln
Professionelle Immobilienbewertung
Wir ermitteln den Marktwert Ihrer Immobilie.
Seriös und sachkundig
VIP-Kunden-Service
Registrieren Sie sich und erfahren als Erster
von neuen Angeboten
Verkauf in 90 Tagen zum bestmöglichen Preis
Mit innovativen Marketingstrategien schnell
und sicher zum Erfolg
Neue Profi-Vermietung für Eigentümer
Vertragspartner der SCHUFA

Kooperationen für Ihren Erfolg

  • immoscout24
  • immonet
  • immowelt
  • kalaydo
  • schufa
  • vermieterschutzkartei
  • huettig+rompf
  • koelnerimmobilienboerse
  • immoscout24
  • immonet
  • immowelt
  • kalaydo
  • schufa
  • vermieterschutzkartei
  • huettig+rompf
  • koelnerimmobilienboerse

11,5% Bruttorendite! Voll vermietete, moderne Büroetage in zentraler Lage von Köthen zu verkaufen

Film zur Immobilie

Virtueller 360° Rundgang

Lageinformation

PLZ 06366
Ort Köthen

Preise/Konditionen

Kaufpreis 120.000 €
Provision 3.57 %

Objektdaten

Objektnummer 1019-M6180
Objektart Büro/Praxen
Etage 1
Nutzfläche 237 m²
Gesamtfläche 237 m²
Bürofläche 224 m²
Baujahr 1993
Verfügbar ab sofort

Ausstattung

Zimmer 7
Stellplatzart Garage, Stellplatz im Freien
Zustand Gepflegt

Grundrisse | Pläne | Dokumente

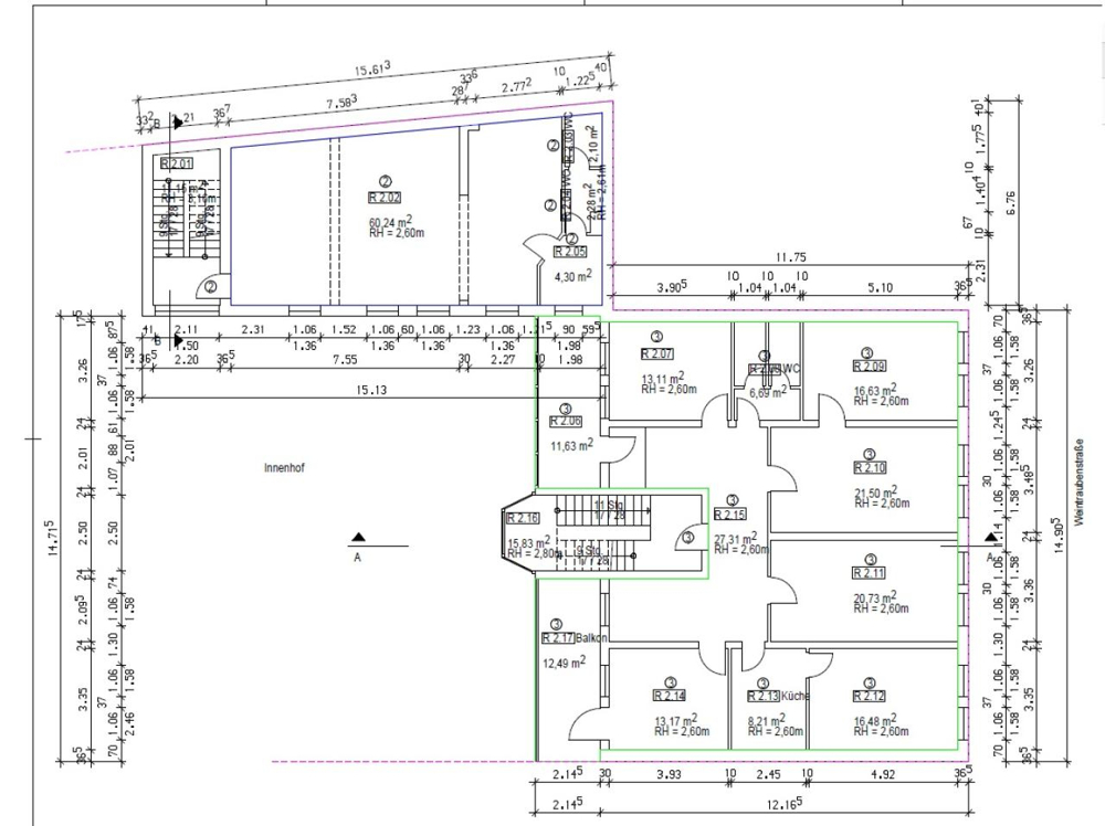
  • Grundriss
Objektbeschreibung Aufteilung


Auf der Etage befinden sich sechs Büro- und Mehrzweckräume von ca. 13 bis 21 m² größe, zwei WC-Räume, eine ca 8 m² große Küche und ein ca. 60m² großer Konferenzraum.
Der nach hinten gelegene, ca 12,5m² große Balkon runden das Angebot ab.

Die helle, gut aufgeteilte Büroetage bietet Ihren Mietern im 1. Obergeschoss auf ca. 225 m² Fläche vielseitige Nutzungsmöglichkeiten.
Die Räumlichkeiten sind entsprechend des Baujahres 1993 in einem modernen Zustand und bieten dem aktuellen Mieter - einem Techstartup - alles was das Herz begehrt.

Energieausweis / Energieversorgung

Heizungsart Zentralheizung Befeuerungsart Gas
Baujahr 1993 Zustand Gepflegt
Energieausweis gültig bis 17.04.2024 Baujahr lt. Energieausweis 1993
Endenergiebedarf (Wärme) 132 kWh/(m²a) Endenergiebedarf (Strom) 3 kWh/(m²a)
Heizungsart Zentralheizung
Befeuerungsart Gas
Baujahr 1993
Zustand Gepflegt
Energieausweis gültig bis 17.04.2024
Baujahr lt. Energieausweis 1993
Endenergiebedarf (Wärme) 132 kWh/(m²a)
Endenergiebedarf (Strom) 3 kWh/(m²a)
Ausstattung Übergabe vermietet
Kunststoff-Isolierverglasung in allen Räumen
Böden: Teppich und Fliesen
2 WC Räume
Einbau-Küche
Gas-Zentralheizuung
Parkplätze im Innenhof vorhanden
Netzwerkverkablung
Sonstiges Vermietung und Mieteinnahmen:
Die Büroetage ist durch ihre Grundrisslösung und der guten Ortslage vielseitig nutzbar.
Die Räumlichkeiten sind vom Eigentümer selbst genutzt, eine Räumung ist nicht geplant. Mit Ihnen als Erwerber wird nach Absprache ein Mietvertrag zur ortsüblichen Vergleichsmiete geschlossen.
Diese kann zB. mit ca. 5,- EUR/m² angesetzt werden, was einer kalkulatorischen Jahresnettokaltmiete von ca.13.800,- EUR entspricht.
Auf den Kaufpreis gerechnet, bedeutet dies für Sie einer Brutto-Rendite von äußerst attraktiven 11,5 % pro Jahr!!!***
Aus Diskretionsgründen haben wir auf die Veröffentlichung von Innenfotos verzichtet.

Lassen Sie sich gerne bei einer persönlichen Besichtigung vor Ort überzeugen!



Unser Exposé kann nur bedingt auf alle Einzelheiten dieses Objektes eingehen. Erst eine Besichtigung vor Ort wird Sie schlüssig über den Gesamteindruck informieren.

Selbstverständlich informieren wir Sie über unsere zinsgünstigen Finanzierungsmöglichkeiten und helfen gerne bei der Beschaffung einer entsprechenden Immobilienfinanzierung.


PROVISION:
Bei notariellem Vertragsabschluss ist eine Provision in Höhe von 3,48 % des Kaufpreises inklusive 16 % MwSt. an uns zu zahlen. Die Provision errechnet sich aus dem beurkundeten Kaufpreis. Alle Angaben nach bestem Wissen, Irrtum und Zwischenverkauf vorbehalten. Alle Informationen aus unserer Offerte beruhen auf Angaben des Eigentümers, für die wir keinerlei Haftung übernehmen. Dieses Exposé ist eine Vorinformation, als Rechtsgrundlage gilt allein der notariell abgeschlossene Kaufvertrag.

Energieausweis: Verbrauchsausweis gültig von: 18.04.2014
Energieverbrauchskennwert: 132 kWh/(m²a)
Stromverbrauchskennwert: 3 kWh/(m²a)
Wesentliche Energieträger Heizung: Befeuerung Gas
Baujahr: 1993

Besichtigungstermine

  • Keine Termine vorhanden.

(* Diese Termine dienen lediglich als Vorschläge und sind unverbindlich. Sollten Sie Interesse haben das Objekt an oben genannten Terminen zu besichtigen, teilen Sie uns dies bitte per Kontaktformular, Telefon oder E-Mail mit.)

Neue Immobilienangebote

Wohnung zum Miete in Pulheim

3-Zimmerwohnung mit Balkon in ruhiger Grünlage

Hausansicht
Schlafzimmer 2 Badezimmer 1 Stellplaetze 1
Stadtteil Sinthern
Wohnfläche 86 m²
Gesamtfläche 86 m²
Zimmer 3
Kaltmiete 790 €
> zum Exposé

Wohnung zum Kauf in Köln

Kapitalanlage oder Eigennutzung: Bezugsfreies Appartement | Balkon | EBK | Stpl.

Außenansicht
Schlafzimmer 1 Badezimmer 1 Stellplaetze 1
Stadtteil Weiden
Wohnfläche 50 m²
Zimmer 1
Kaufpreis 149.000 €
Provision provisionsfrei
> zum Exposé

Wohnung zum Miete in Frechen

2-Zimmerwohnung mit Einbauküche in gepflegtem Dreiparteienhaus

Hausansicht
Schlafzimmer 1 Badezimmer 1
Stadtteil Buschbell
Wohnfläche 40 m²
Zimmer 2
Kaltmiete 500 €
> zum Exposé